Agence Dumas Immobilier Agence
Télécharger la fiche
Exclusivité

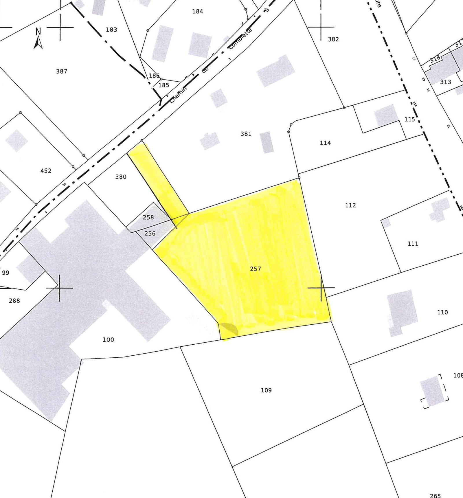
Terrain 4460 m² 4460 m²

Paray-le-Monial (71600)
44 900 € Référence 2282

A propos de ce bien

Paray le Monial, hors lotissement, parcelle de terrain constructible d'environ 4 460 m² (4 230 m² pour la parcelle + environ 230 m² pour le chemin), raccordable au réseau communal des eaux usées. CU positif. Prix de vente 22 500 € + achat du chemin d'accès indépendamment pour environ 15 000 € en supplèment (sur devis à réactualiser au moment de la vente) - Renseignements sur demande. Soit un total d'environ 37 500 € pour l'ensemble.

Caractéristiques de ce bien

  • terrain 4 460 m²

Diagnostics énergétiques

Consommation énergétique
A B C D E F G
Emission de gaz à effet de serre
A B C D E F G
DPE ANCIENNE VERSION

Informations financières

Prix de vente 44 900 € Les honoraires d'agence seront intégralement à la charge du vendeur

Calcul des mensualités

* Champs obligatoires