Agence Dumas Immobilier Agence
Télécharger la fiche
Exclusivité

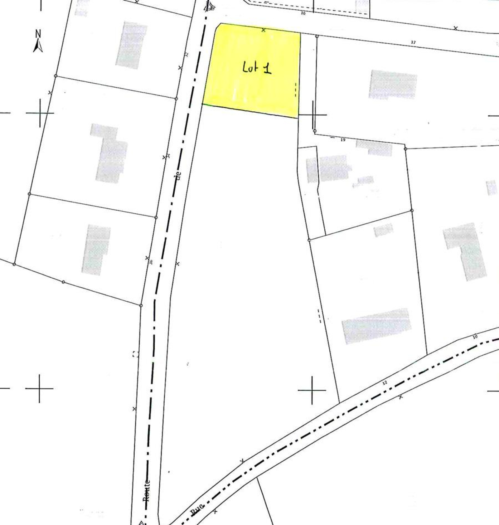
Terrain 860 m² 860 m²

Chassenard (03510)
19 000 € Référence 1493

A propos de ce bien

Chassenard, vends parcelle de terrain constructible d'environ 860 m², plat avec viabilités en bordure. Tout à l'égout. CU positif. Lot 1

Caractéristiques de ce bien

  • terrain 860 m²

Diagnostics énergétiques

Consommation énergétique
A B C D E F G
Emission de gaz à effet de serre
A B C D E F G
DPE ANCIENNE VERSION

Informations financières

Prix de vente 19 000 € Les honoraires d'agence seront intégralement à la charge du vendeur

Calcul des mensualités

* Champs obligatoires